Render Residencial Terraplana, Gimenells
Obra nova · Gimenells, Lleida

Residencial
Terraplana

12 habitatges unifamiliars pensats per viure el camp sense renunciar al disseny contemporani.

Fase 1 · 1/6 venudaFase 2 · oberta 2027

Preu de llançament

325.000€335.000€

Descompte de 10.000€ per reservar abans d'iniciar les obres.

Vull més informació →

La promoció

Dotze llars amb jardí, al cor del Segrià.

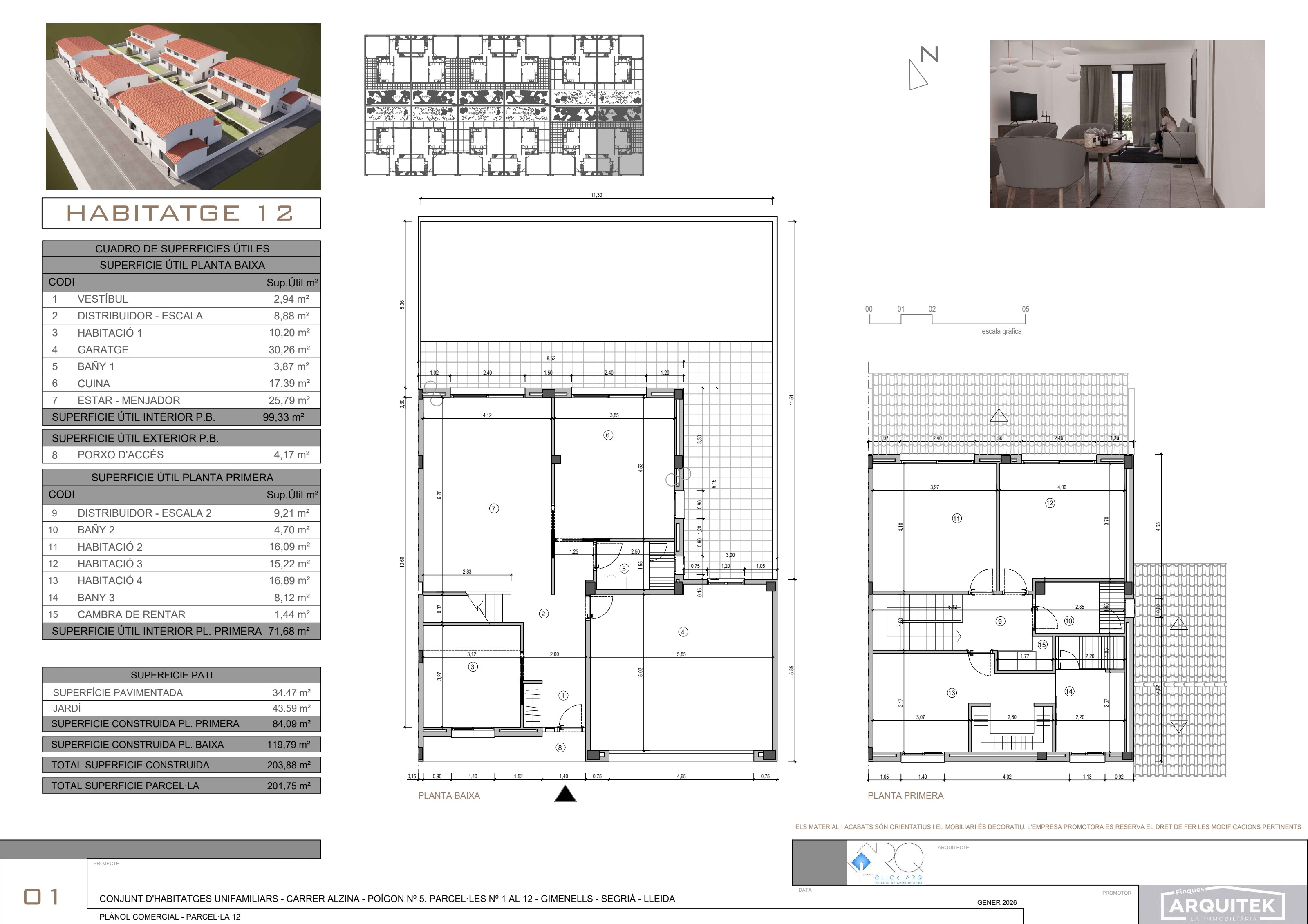
Residencial Terraplana és un conjunt de 12 habitatges unifamiliars al Carrer Alzina de Gimenells, dissenyat per Clicsarq i promogut per Finques Arquitek.

Cada habitatge combina 203 m² construïts en dues plantes, 4 habitacions, garatge privat i jardí. Un projecte pensat per a famílies que busquen qualitat de vida, natura i proximitat a Lleida.

12
Habitatges
203 m²
Construïts
4
Habitacions
201 m²
Parcel·la
Façana principal Residencial TerraplanaFaçana principal
Façana posterior amb jardinsFaçana posterior · jardins

Disseny

Arquitectura honesta. Materials que envelleixen bé.

Cobertes inclinades de teula, façanes blanques amb fusta de to xocolata, grans finestrals i porxos d'accés. Una imatge contemporània amb guspires de l'arquitectura tradicional del Segrià.

Viure a Gimenells

Un poble pensat
per créixer en família.

Vista aèria de Gimenells

Hi ha pobles que es viuen amb pressa. Gimenells, no.

Situat al cor del Segrià, envoltat de camps de fruiters i sembrats, Gimenells és un d'aquells llocs on encara es coneix el nom del veí, on els nens van caminant a l'escola i on cada matí l'aire fa olor de terra mullada. Un poble petit —poc més de 1.000 habitants— amb tots els serveis essencials: escola, llar d'infants, consultori mèdic, poliesportiu, biblioteca i comerç de proximitat.

I, alhora, a només 20 minuts de Lleida i ben connectat amb l'AP-2 i l'estació de l'AVE. Pots treballar a la ciutat i tornar a casa per dinar al jardí. Pots tenir hort, pots tenir gos, pots deixar la bici a la porta.

Tranquil·litat real

Sense soroll, sense embussos, sense presses. El ritme del camp.

Comunitat de poble

Festa major, cultura popular i veïns que es coneixen pel nom.

Natura a la porta

Camps, camins i el canal d'Aragó i Catalunya per passejar.

Connectat a Lleida

20 min en cotxe a Lleida ciutat. Hospital, universitats i AVE.

"Una casa nova, àmplia, amb jardí i garatge, en un poble on els fills creixen amb llibertat. Això és el que ofereix Residencial Terraplana."

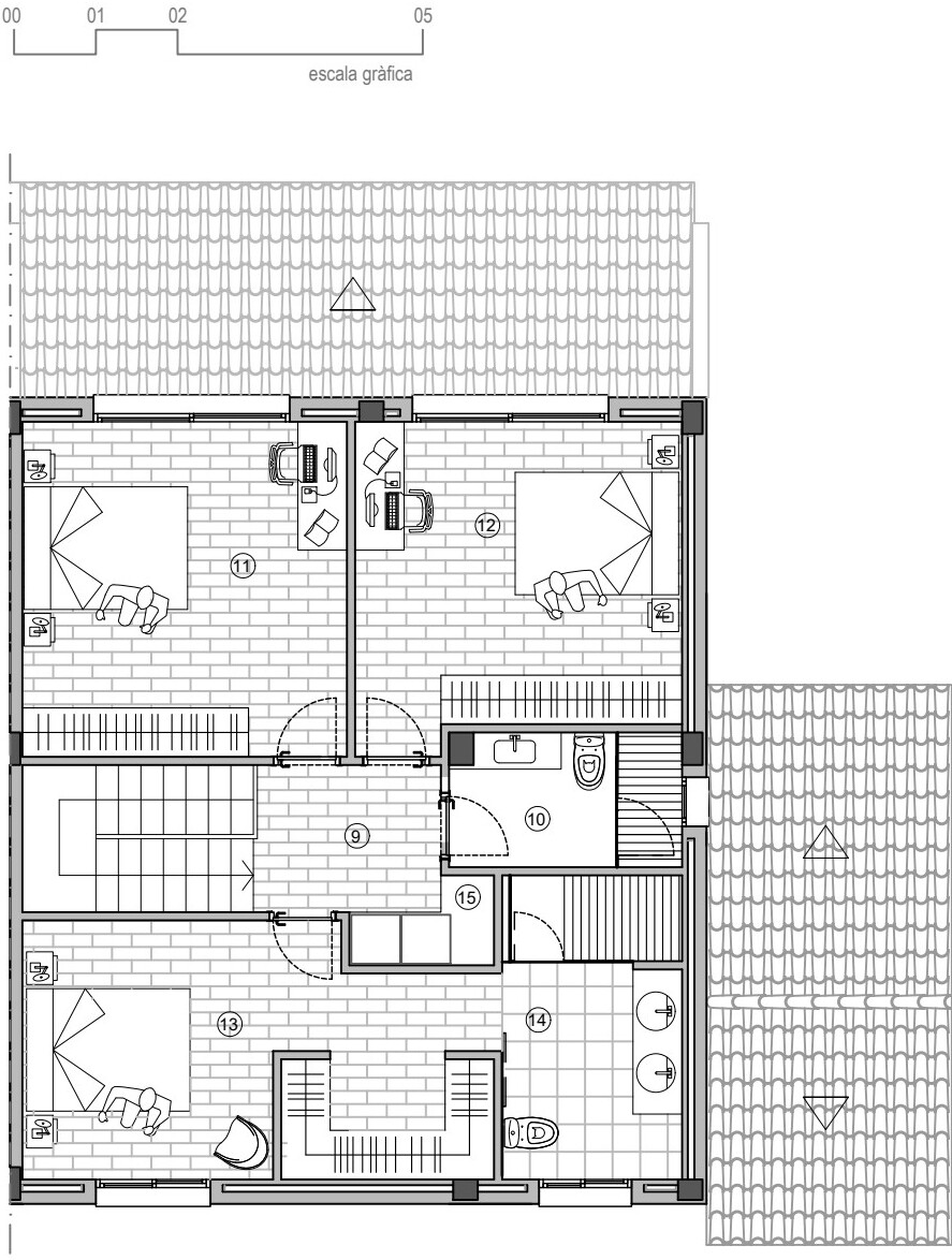
Els habitatges de Terraplana són obra nova del 2026, amb qualificació energètica A, aerotermia i façanes ben aïllades. Espais amplis —un saló de 25 m², cuina de 17 m², 4 habitacions— pensats perquè cadascú tingui el seu racó i, alhora, la família pugui viure unida. Un garatge privat de 30 m², jardí posterior i un porxo d'accés que convida a quedar-se.

No és només una casa. És un projecte de vida.

Interior

Espais lluminosos, oberts al jardí.

Sala d'estar-menjador de 25,79 m² connectada a una cuina de 17,39 m² i pati exterior. La llum natural protagonista a cada estança, amb habitacions de fins a 16 m².

Habitacions premium

Fins a 16 m² per habitació

Memòria de qualitats

Eficiència energètica A. Sense compromisos.

Climatització

Aerotèrmia

Fred, ACS i calefacció.

Façana

SATE grafit

Aïllament tèrmic exterior λ<0,031.

Aire

VMC

Ventilació Mecànica Controlada.

Normativa

CTE

Compliment del Codi Tècnic de l'Edificació.

Tria d'acabats · Fusteria exterior

Dues opcions de color. La majoria decideix.

La fusteria exterior i el forjat vist es poden executar en dues tonalitats. L'acabat final es decidirà segons l'opció escollida per la majoria de propietaris reservats. Indica la teva preferència al formulari de contacte.

Opció A — Carpinteria marró xocolataOpció A
Opció A posterior — marró

Marró xocolata

Acabat càlid de noguera fosca, en línia amb l'arquitectura tradicional del Segrià.

Opció B — Carpinteria gris antracitaOpció B
Opció B posterior — gris antracita

Gris antracita

Acabat contemporani i sobri (RAL 7016), amb major contrast sobre el blanc.

Documentació tècnica

Plànols de cotes, distribució i secció.

Descarrega els plànols oficials del projecte en format PDF per consultar-los amb detall.

Les mides indicades als plànols són aproximades i poden patir modificacions si així ho determina la direcció facultativa durant l'execució de l'obra.

Disponibilitat

Croquis de parcel·les · 6 × 2

Consulta quines de les 12 parcel·les segueixen disponibles. A mesura que es reserven, queden marcades al croquis.

Total

12

Disponibles

11

Reservades

1

Fase 1 · en comercialització

1/6 venudes

Activa

Fase 2 · oberta

Any 2027

Properament
↑ Carrer Alzina
Parcel·la1Reservada
Parcel·la2Disponible
Parcel·la3Disponible
Parcel·la4Disponible
Parcel·la5Disponible
Parcel·la6Disponible
Parcel·la7Fase 2 · 2027
Parcel·la8Fase 2 · 2027
Parcel·la9Fase 2 · 2027
Parcel·la10Fase 2 · 2027
Parcel·la11Fase 2 · 2027
Parcel·la12Fase 2 · 2027
↓ Carrer Pedro Burón

La promoció s'executa en 2 fases: primer es comercialitza la Fase 1 (parcel·les 1 a 6) i, posteriorment, la Fase 2 (parcel·les 7 a 12). Cada fase només s'executarà si existeixen compradors. El promotor es reserva el dret de retornar les quantitats rebudes en cas que l'obra no es tiri endavant.

Croquis orientatiu · 6 × 2 parcel·les entre el Carrer Alzina i el Carrer Pedro Burón

Fase 1

Parcel·les 1 a 6

Carrer Alzina. Es comercialitza en primer lloc.

Fase 2

Parcel·les 7 a 12

Carrer Pedro Burón. Es comercialitzarà a continuació.

Execució del projecte per fases

El projecte s'ha previst executar en dues fases: primer es comercialitzarà la fase 1 (parcel·les 1 a 6) i, posteriorment, la fase 2 (parcel·les 7 a 12). Cada fase només s'executarà si existeixen compradors suficients. El promotor es reserva el dret de retornar les quantitats rebudes en cas que finalment no es tiri endavant l'obra.

Façana posterior amb jardins

Nova modalitat

Estaries disposat a formar part d'una cooperativa?

Estem estudiant desenvolupar la promoció en règim cooperatiu amb la possibilitat d'adquirir una parcel·la de 200 m² per 46.000€, amb l'estructura de fonamentació i el forjat sanitari ja executats.

Construeix la teva casa al teu ritme, amb costos compartits i acompanyament tècnic. Necessitem conèixer el teu interès.

Descobrir la cooperativa →

Només 12 unitats

T'imagines vivint aquí?

Programa una visita personalitzada amb el nostre equip i descobreix la teva futura casa abans que ningú.

Reservar visita →